Добро пожаловать на http://vipplan.ru

Випплан Ступино - это тысячи проектов домов в нашем каталоге!

Вы всегда сможете найти для себя проект дома вашей мечты! Даже если этого не случилось, мы готовы в любую минуту предложить проект индивидуального дома.

Забыли пароль?
Вы еще не регистрировались?

Перейдите по ссылке ниже на страницу регистрации.

Регистрация...

Внимание!!!

В проектную документацию могут быть внесены изменения любой сложности, в соответствии в Вашими пожеланиями!

Полезные статьи

Уклон кровли дома

Чтобы вода быстрее уходила с кровли Вашего дома, скатам необходимо придать уклон, который выражающийся в процентах или градусах и измеряющийся геодезическими инструментами. Уклон кровли обозначает угол наклона ската к горизонту. Чем больше уклон, тем круче крыша. У новомодных зданий наклон кровли делают не очень большим....

Окна в доме

От хорошего стеклопакета зависит почти 50% теплостойкости всего дома. Ведь на проемы в окнах приходится до 45% тепловых потерь дома. Поэтому хорошие стеклопакеты не пропускают тепло из комнаты и должны противостоять проникновению ветра, влаги и холода с наружной стороны....

Проекты домов и коттеджей > Каталог проектов домов > Проект загородного коттеджа из пенобетона Vg1450

Проект загородного коттеджа из пенобетона Vg1450

Проект загородного коттеджа из пенобетона
Зарегистрируйтесь

Проект № Vg1450


Техническое описание
Общая площадь: 146.18 м2
Жилая площадь: 95.21 м2
Высота здания: 8.58 м
Размеры дома: 11.84м×9.65м
Кол-во комнат: 5
Цокольный этаж: нет
Гараж: нет
Мансарда: есть

Kонструкция
Фундамент: Свайно-ростверковый
Перекрытия: Монолитная ж/б плита
Материал стен: Газобетон

Архитектурный раздел
Конструктивный раздел
АР+КР - 52 000 (Со скидкой 20%)
Проект индивидуального одноэтажного жилого дома с мансардой с размерами здания 11,84 x 9,65 м. Наружная отделка здания – штукатурка, деревянные панели, искусственный камень. Фундамент – свайно-ростверковый буронабивной. Наружные стены – из пенобетонного блока с утеплением минеральной ватой и отделкой штукатуркой, деревянными панелями, искусственным камнем. Внутренние стены – из пенобетонного блока. Перегородки – из пенобетонного блока. Пол первого этажа – пол по грунту, межэтажное перекрытие- монолитная ж/б плита перекрытия. Крыша — многоскатная. Кровля – металлочерепица. Окна — металлопластиковые
Генплан застройки участка / Паспорт проекта 7000 руб / 10000 руб
Инженерный раздел (полный) 73000 руб
Смета на строительство 36500 руб
Теплотехнический расчет материалов стен Бесплатно
Стоимость проекта со незначительнми изменениями 61350 руб
Стоимость проекта со средними изменениями* 72300 руб
Стоимость проекта со значительными изменениями** 75200 руб

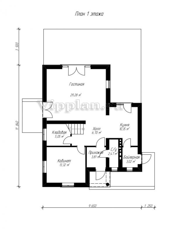
План первого этажа


Прихожая — 3,81 м2
Ходд — 6,70 м2
С/у — 2,47 м2
Кухня — 10,35 м2
Бойлерная — 3,02 м2
Кладовая — 5,05 м2
Кабинет — 13,32 м2
Гостиная — 29,28 м2

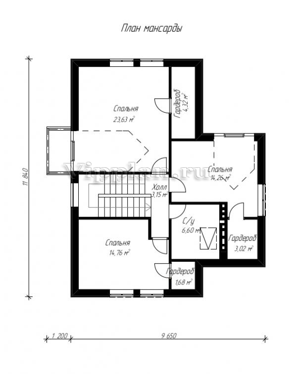
План мансардного этажа


Холл — 3,15 м2
Спальня — 23,63 м2
Гардероб — 4,32 м2
Спальня — 14,26 м2
С/у — 6,60 м2
Гардероб — 3,02 м2
Спальня — 14,76 м2
Гардероб — 1,68 м2
Проект загородного коттеджа из пенобетона Проект загородного коттеджа из пенобетона Проект загородного коттеджа из пенобетона Проект загородного коттеджа из пенобетона

Модификации проектов

Внесение изменений и привязка к участку строительства

В любой из проектов от компании VIPplan - Ступино по вашему желанию могут быть внесены изменения в материалы стен, материалы наружной отделки дома, а также будет произведена адаптация проекта под конкретный регион строительства (с учетом грунтов региона, геологических особенностей вашего участка и местных климатических условий) - БЕСПЛАТНО !!! (кроме проектов со скидкой и проектов наших партнеров).

Любой из проектов, размещенных на сайте stupino.vipplan.ru мы можем выполнить из требуемых вам строительных материалов: ячеистый бетон (газобетон, пеноблок), керамоблок, кирпич, шлакоблок, бетонный блок, дерево (брус, клееный брус), каркасная технология (деревянный каркас, металлокаркас (ЛСТК)).

Фасад дома и его наружную отделку так же возможно выполнить с применением различных облицовочных материалов: структурной штукатурки, (с утеплителем и без), сайдингом (пластиковый или металлосайдинг), фиброплитами, кирпича.

 
6 Избранные
проекты

Доставка проектов по России: Москва (Московская область), Санкт-Петербург (Ленинградская область), Краснодар, Ростов-на-Дону, Ставрополь, Сочи, Волгоград, Новосибирск, Белгород, Брянск, Воронеж, Саратов, Хабаровск, Астрахань, Нальчик, Владикавказ, Екатеринбург, Тюмень, Самара, Нижний Новгород, Казань, Пермь, Уфа, Челябинск, Красноярск, Ханты-Мансийск, Иркутск, Курган, Оренбург, Омск, Томск, Барнаул, Новокузнецк, Кемерово, Абакан, Чита, Якутск, Южно-Сахалинск, Петропавловск-Камчатский и страны ближнего зарубежья: Белоруссия, Украина, Казахстан