Добро пожаловать на http://vipplan.ru

Випплан Ступино - это тысячи проектов домов в нашем каталоге!

Вы всегда сможете найти для себя проект дома вашей мечты! Даже если этого не случилось, мы готовы в любую минуту предложить проект индивидуального дома.

Забыли пароль?
Вы еще не регистрировались?

Перейдите по ссылке ниже на страницу регистрации.

Регистрация...

Внимание!!!

В проектную документацию могут быть внесены изменения любой сложности, в соответствии в Вашими пожеланиями!

Полезные статьи

Виды бассейнов

В наше время, строительство бассейна на территории своего участка, не такая уж и роскошь. Выбор видов и стилей бассейна, на сегодняшний день, очень большой....

Вентиляция в подвале дома

Без подвала или цокольного этажа в частном доме, в наше время, не обойтись. Это полезное для дома помещение должно быть хорошо вентилируемым. В доме с подвалом должна быть хорошая циркуляция воздуха, для сохранения находящихся в нем продуктов. Отсутствие вентиляции  может привести к образованию плесени и сырости не только в подвале, но и во всем доме....

Проекты домов и коттеджей > Каталог проектов домов > Одноэтажный дом с террасой Vg1234

Одноэтажный дом с террасой Vg1234

Одноэтажный дом с террасой
Зарегистрируйтесь

Проект № Vg1234


Техническое описание
Общая площадь: 136 м2
Жилая площадь: 77.41 м2
Высота здания: 9.3 м
Размеры дома: 12.3м×8.5м
Кол-во комнат: 4
Цокольный этаж: нет
Гараж: нет
Мансарда: есть

Kонструкция
Фундамент: Ленточный
Перекрытия: Ж/б плиты
Материал стен: Газобетон

Архитектурный раздел
Конструктивный раздел
АР+КР - 52 000 (Со скидкой 20%)
СРОК ПОДГОТОВКИ КОМПЛЕКТА ЧЕРТЕЖЕЙ 7 РАБОЧИХ ДНЕЙ Проект индивидуального одноэтажного жилого дома с мансардой , размерами 12,3 x 8,5 м. Наружная отделка здания – кирпич . Цоколь - камень. Фундамент - ленточный, монолитный ж/б . Наружные стены - газобетон, утеплитель, кирпич облицовочный. Внутренние стены и перегородки – газобетон, кирпич. Перемычки – монолитные. Пол первого этажа – «по грунту». Перекрытие – ж/б плиты перекрытия ( деревянные балки). Крыша - скатная. Материал кровли – металлочерепица.
Генплан застройки участка / Паспорт проекта 7000 руб / 10000 руб
Инженерный раздел (полный) 68000 руб
Смета на строительство 34000 руб
Теплотехнический расчет материалов стен Бесплатно
Стоимость проекта со незначительнми изменениями 61600 руб
Стоимость проекта со средними изменениями* 71800 руб
Стоимость проекта со значительными изменениями** 74500 руб

План первого этажа


Прихожая — 7,90 кв м
Холл — 12,17 кв м
С/у — 6,24 кв м
Кухня — 16,70 кв м
Гостиная — 31,61 кв м

Одноэтажный дом с террасой

Одноэтажный дом с террасой

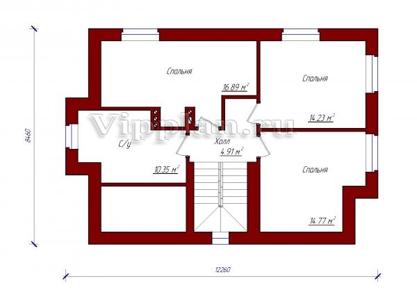
План второго этажа


Холл — 4,91 кв м
Спальня — 16,89 кв м
Спальня — 14,23 кв м
Спальня — 14,77 кв м
С/у — 10,35 кв м

План мансардного этажа



Одноэтажный дом с террасой Одноэтажный дом с террасой Одноэтажный дом с террасой Одноэтажный дом с террасой

Модификации проектов

Внесение изменений и привязка к участку строительства

В любой из проектов от компании VIPplan - Ступино по вашему желанию могут быть внесены изменения в материалы стен, материалы наружной отделки дома, а также будет произведена адаптация проекта под конкретный регион строительства (с учетом грунтов региона, геологических особенностей вашего участка и местных климатических условий) - БЕСПЛАТНО !!! (кроме проектов со скидкой и проектов наших партнеров).

Любой из проектов, размещенных на сайте stupino.vipplan.ru мы можем выполнить из требуемых вам строительных материалов: ячеистый бетон (газобетон, пеноблок), керамоблок, кирпич, шлакоблок, бетонный блок, дерево (брус, клееный брус), каркасная технология (деревянный каркас, металлокаркас (ЛСТК)).

Фасад дома и его наружную отделку так же возможно выполнить с применением различных облицовочных материалов: структурной штукатурки, (с утеплителем и без), сайдингом (пластиковый или металлосайдинг), фиброплитами, кирпича.

 
6 Избранные
проекты

Доставка проектов по России: Москва (Московская область), Санкт-Петербург (Ленинградская область), Краснодар, Ростов-на-Дону, Ставрополь, Сочи, Волгоград, Новосибирск, Белгород, Брянск, Воронеж, Саратов, Хабаровск, Астрахань, Нальчик, Владикавказ, Екатеринбург, Тюмень, Самара, Нижний Новгород, Казань, Пермь, Уфа, Челябинск, Красноярск, Ханты-Мансийск, Иркутск, Курган, Оренбург, Омск, Томск, Барнаул, Новокузнецк, Кемерово, Абакан, Чита, Якутск, Южно-Сахалинск, Петропавловск-Камчатский и страны ближнего зарубежья: Белоруссия, Украина, Казахстан